Faradays

Bird Street, London

£750,000

Bird Street, London
Bird Street, London Bird Street, London Bird Street, London Bird Street, London

Property Description

1 Bedroom(s) | 1 Bathroom(s) | 1 Reception(s)

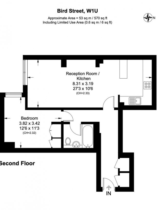
Floorplan for Bird Street, London

These particulars have been prepared in good faith to give a fair overall view of the property; they do not constitute an offer and will not form part of any contract. We make no representation about the conditions of the property nor that any services or appliances are in good working order; this should be checked by your surveyor. Furthermore, you should not assume that any items or features referred to in these particulars or shown in the photographs are included in the sale price. Your solicitor should check this as part of the normal conveyancing process.