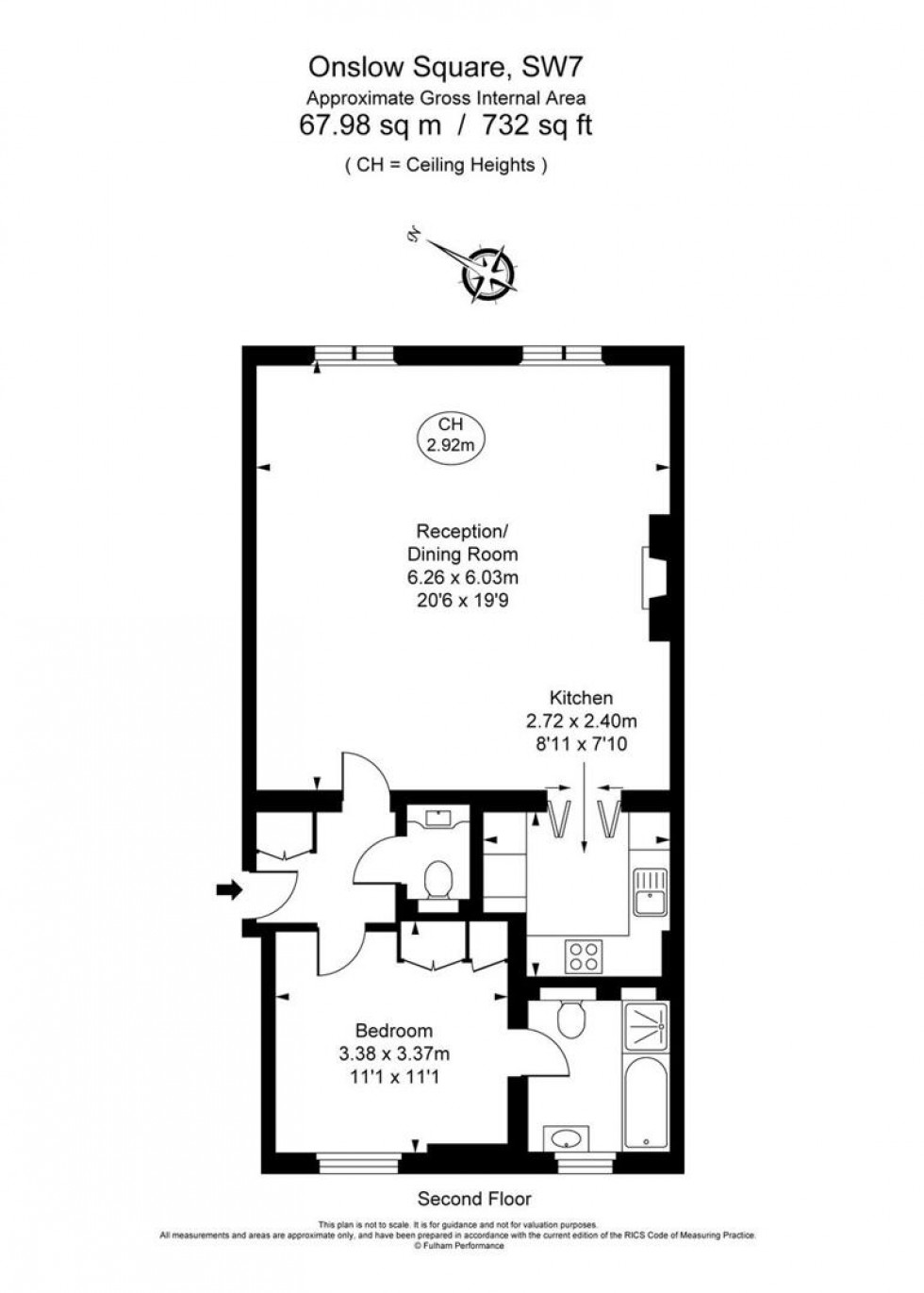
Nestled in the prestigious Onslow Square, South Kensington, this newly created ultra-luxury one-bedroom apartment offers an exquisite living experience in one of London’s most sought-after locations. Spanning approximately 732 square feet, this elegant flat is situated on the second floor and boasts a remarkable ceiling height of 2.92 metres, creating a sense of space and grandeur.

Upon entering, you are welcomed into a spacious reception and dining room, measuring 6.26 by 6.03 metres. This area features large windows that flood the room with natural light, classical mouldings, and a beautifully restored Emperador marble fireplace. The custom-made furniture and zebra wood wall unit, complete with an LED TV, add a touch of sophistication.

The kitchen is a culinary delight, equipped with high-end appliances from Miele, Siemers, and AEG, alongside a Caesarstone countertop and a SMEG induction hob, making it perfect for both cooking and entertaining. The bedroom, measuring 3.38 by 3.37 metres, is designed for comfort, featuring a motorised silk blackout Roman blind, a custom king-size headboard, and a luxury hotel mattress. The full-width wardrobe with LED lighting and Zuma Bluetooth stereo speakers enhance the modern living experience.

The en-suite bathroom is a sanctuary of relaxation, adorned with Calcatta d'Oro slabs, a soaking tub, and a glass-enclosed shower. Brushed nickel fixtures and underfloor heating add to the luxurious feel, while the Emperador marble vanity unit provides a stylish touch.

Residents will also enjoy access to communal gardens and tennis courts, along with a convenient 30 square foot basement storage locker equipped with a wine fridge.

Located close to South Kensington Underground.
  • Ultra-luxury one-bedroom flat
  • Approx. 732 sq ft space
  • High ceilings: 2.92m
  • Superb Custom Made furniture
  • Large windows, classical moldings, Marble Fireplace
  • High-end kitchen appliances
  • Luxury Marble en-suite with soaking tub
  • Access to gardens and tennis courts
  • Near South Kensington station
  • Viewing by appointment only
Floorplan for Onslow Square, London
EPC Graph for Onslow Square, London
instant online valuation

Request a FREE valuation

Find out how much your property is worth